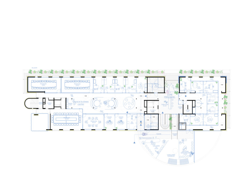
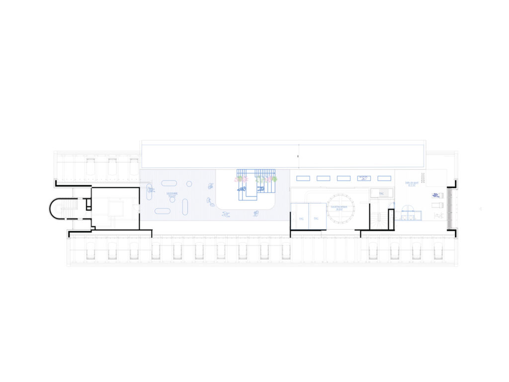
Programme : Rénovation du siège de la Mutualité Chrétienne à Namur
Maître d’ouvrage : Mutualité Chrétienne
Année : 2025
Statut : Proposition non retenue
Équipe : (Mandataire:SIA & B2AI) Luc Pécourt, Ludovic Raquet, Guillaume de Lathuy, Sophie Picard
Situation : Namur
Superficie : – m²
Budget : 6.525.000 €

MTLT-CHRTNN