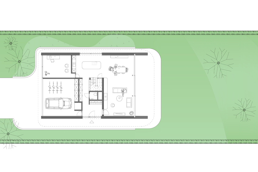
PROGRAM
Construction d’une habitation unifamiliale

LOCATION
Herne

CLIENT
Privé

DURATION
2023

STATUS
Livré 2025

AUTHOR(S)
SPKTR architects (L.Pécourt, L.Raquet, G.De Lathuy)

SURFACES
220m²

BUDGET

CONSULTANTS

PICTURES

HERNE