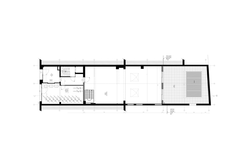
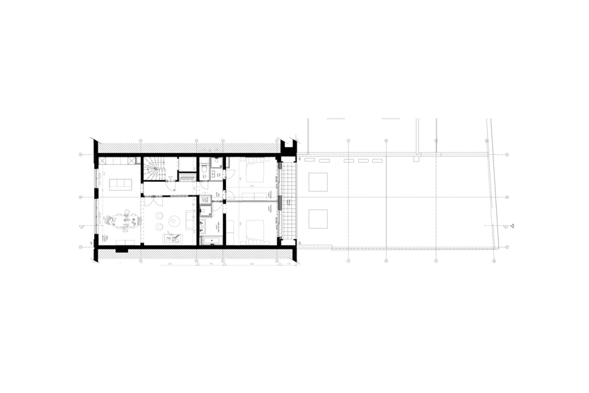
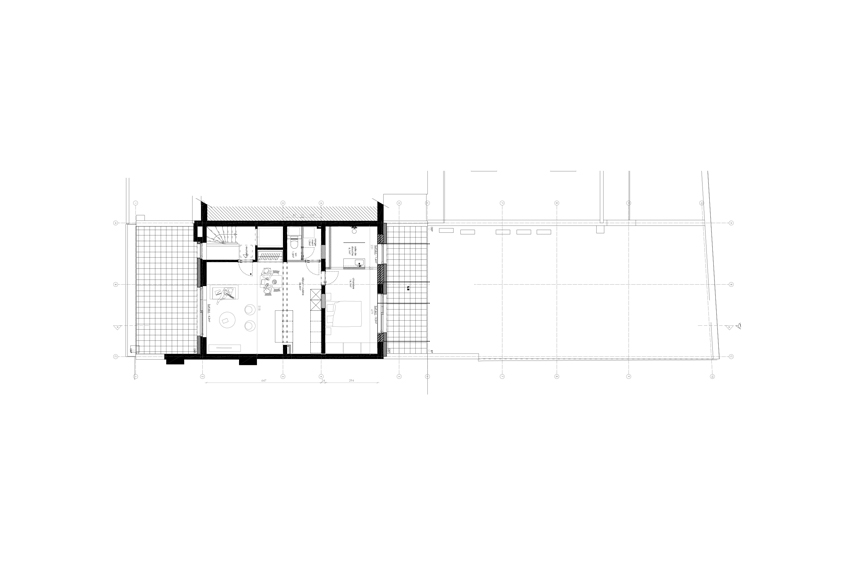
Programme : Rénovation d’un immeuble mixte Maître d’ouvrage : Privé Année : 2025- Statut : Demande de permis d’urbanisme Équipe : Ludovic Raquet Situation : Schaerbeek Superficie : m² Budget : €